Commercial space/offices Montreuil 486.16 m2
MONTREUIL, in the immediate vicinity of Vincennes: Commercial space/offices of 486.16 m².
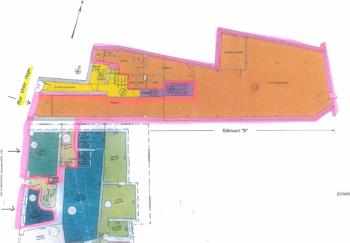
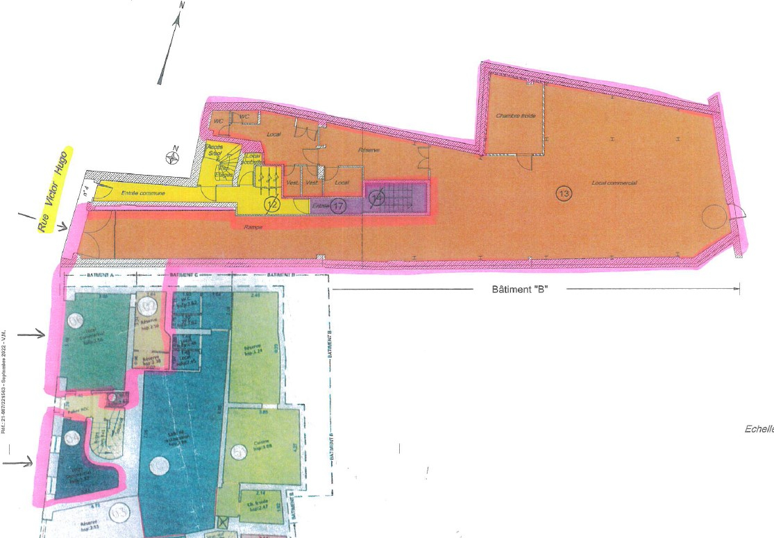
Only a 5-minute walk from the Croix de Chavaux metro station (line 9), in the pedestrian area of Rue du Capitaine Dreyfus, on the ground floor of a building of character, commercial premises with a total area of 486.15 m².
This property consists of:
-On the ground floor, a fully rehabilitated plateau of 277.97 m²; an additional room of 26.10 m², located in the adjoining building, and an independent reserve of 8.8 m², offering a total facade length of 12.84 m.
-On the 1st floor, offices under a brand new glass roof, with an area of 173.29m², decorated with two green terraces. Parquet, reversible air conditioning, fiber.
Two independent entrances and the possibility of connecting the two. PMR access. Presence of an extraction. File and plans on request.
Co-ownership of 5 lots - including 4 residential lots. ().
Annual expenses: 4167 euros.


















No items found.